지난번 시간을 통해 굴삭기운전기능사 자격증 기본 정보
https://www.focuspremium.co.kr/27
굴삭기운전기능사 자격증 필수 기본 정보
굴삭기 운전기능사는 여러가지 건설기계 중장비 운전 자격증 중에 대표적인 자격증입니다. 아래 나온 리스트의 건설기계 중장비가 모두 동일한 일정이나 시험 형태를 가지고 있지는 않습니다.
www.focuspremium.co.kr
지게차운전기능사 자격증 기본 정보
https://www.focuspremium.co.kr/28
지게차운전기능사 자격증 필수 정보
굴삭기와 마찬가지로 지게차운전기능사는 여러가지 건설기계 중장비 운전 자격증 중에 대표적인 자격증입니다. 아래 나온 리스트의 건설기계 중장비가 모두 동일한 일정이나 시험 형태를 가지
www.focuspremium.co.kr
https://www.focuspremium.co.kr/29
로더운전기능사 자격증 취득 기본 정보
지난번 시간을 통해 굴삭기운전기능사 자격증 기본 정보 https://www.focuspremium.co.kr/27 굴삭기운전기능사 자격증 필수 기본 정보 굴삭기 운전기능사는 여러가지 건설기계 중장비 운전 자격증 중에
www.focuspremium.co.kr
https://www.focuspremium.co.kr/31
롤러운전기능사 자격증 필수 기본 정보
지난번 시간을 통해 굴삭기운전기능사 자격증 기본 정보 https://www.focuspremium.co.kr/27 굴삭기운전기능사 자격증 필수 기본 정보 굴삭기 운전기능사는 여러가지 건설기계 중장비 운전 자격증 중에
www.focuspremium.co.kr
https://www.focuspremium.co.kr/33
천장크레인운전기능사 자격증 필수 기본 정보
지난번 시간을 통해 굴삭기운전기능사 자격증 기본 정보 https://www.focuspremium.co.kr/27 굴삭기운전기능사 자격증 필수 기본 정보 굴삭기 운전기능사는 여러가지 건설기계 중장비 운전 자격증 중에
www.focuspremium.co.kr
오늘은 컨테이너크레인운전기능사 자격증에 대해서 살펴보겠습니다.
아래 나온 리스트의 건설기계 중장비가 모두 동일한 일정이나 시험 형태를 가지고 있지는 않습니다.
지게차와 함께 굴삭기는 시험일정이 상시에 해당되며, 로더 및 기중기, 불도저 중장비는 정기 일정이라 시험 횟수가 많지는 않습니다.

컨테이너크레인운전기능사 자격 시험에 대한 가장 기본적인 하지만 반드시 알면 도움되는 시험방법에 대해서 안내해 드리겠습니다.

컨테이너크레인운전기능사 자격증이란?
컨테이너크레인을 운전하여 컨테이너를 운반하는 능력을 평가
응시자격
나이, 학력 제한없이 누구나 응시 가능
시험방법
1차 필기시험 => 2차 실기시험
시험일정
연간 약 4회
시험수수료
필기: 14,500원, 실기: 27,500원
필기시험
총 문항수: 객관식 60문항 (컨테이너 일반 및 기계장치, 전기 시스템, 유압시스템, 컨테이너 실무, 안전관리 등)
시험시간: 60분
합격기준: 100점 만점 중 60점 이상 합격(60문항 중 36문항)
실기시험
시험방법: 작업형 (컨테이너크레인운전 실무)
시험시간: 트랜스퍼크레인식: 6분, 컨테이너크레인식: 6분
합격기준: 100점 만점 중 60 점 이상 합격
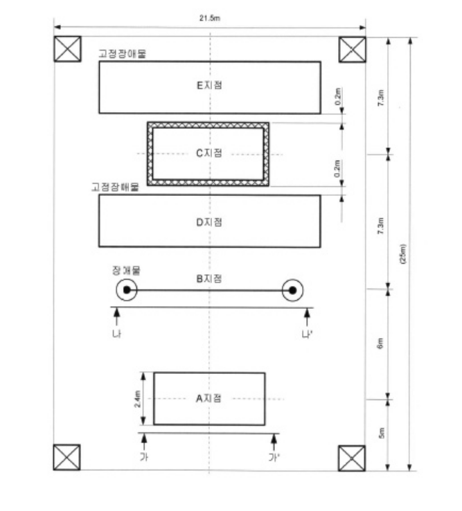
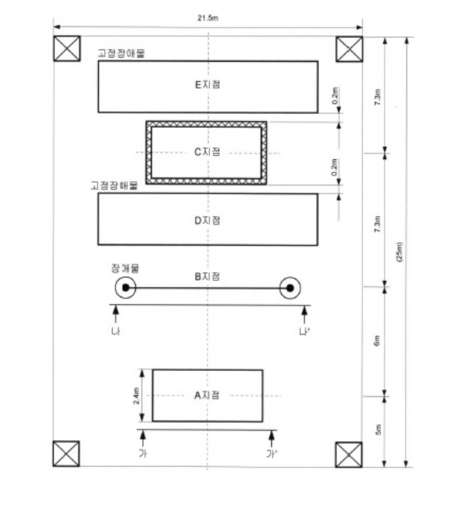
주요내용
트랜스퍼크레인식
- 컨테이너크레인을 운전하여 스프레더를 A지점으로 이동시킵니다.
- A지점의 2단에 적재되어 있는 컨테이너를 스프레더로 잡아 권상하여 B지점의 장애물을 넘은 후 C지점에 적치합니다.
- 빈 스프레더로 1m 이상 권상한 후 다시 권하합니다.
- C지점의 컨테이너를 스프레더로 잡아 권상하여 B지점의 장애물을 넘은 후 A지점의 2단에 적재한 후 스프레더를 주차위치로 이동하며 마무리 합니다.

컨테이너크레인식
- 장비를 운전하여 트롤리 및 스프레더를 주차위치에서 A지점으로 이동하면서 플리퍼를 내립니다.
- A지점의 2단에 적재되어 있는 컨테이너를 B지점의 장애물을 넘어 C지점의 홀드에 적재합니다.
- 빈 스프레더로 1m 이상 권상 한 후 다시 권하합니다.
- C지점의 컨테이너를 권상하여 B지점의 장애물을 넘은 후 A지점에 2단에 적재하고 트롤리 및 스프레더를 주자위치로 이동하여 마무리 합니다.

관련 분야 자격증
로더운전기능사, 기중기운전기능사, 굴삭기운전기능사, 지게차운전기능사, 롤러운전기능사, 불도저운전기능사, 천장크레인운전기능사 등

관련 취업 분야
건설기계정비업, 건설업, 중공업, 건설기계대여업, 관련 교육훈련기관 등
2020년 합격 현황

'자격증 > 로더 기중기 외' 카테고리의 다른 글
| 로더 및 기중기운전기능사 정기 기능사 제3회 필기시험 응시인원 및 합격률 (2) | 2021.07.18 |
|---|---|
| 로더 기중기 운전기능사 필기 시험 후기 (2) | 2021.07.11 |
| 천장크레인운전기능사 자격증 필수 기본 정보 (1) | 2021.06.28 |
| 불도저운전기능사 필수 기본 정보 (0) | 2021.06.27 |
| 롤러운전기능사 자격증 필수 기본 정보 (0) | 2021.06.25 |
댓글